本次為公司辦公室裝修設計方案,辦公室設計面積800平方,設計師在辦公室設計中,以靈動、簡約、自然、童趣為設計原則,目的就是希望打造一個多元化的辦公客戶。
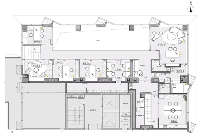
▼公司辦公室平面圖

▼公司辦公室平面圖

▼公司辦公室前臺

▼公司辦公室接待區

▼公司辦公室接待區

▼公司辦公室交流區

▼公司辦公室交流區

▼公司辦公室辦公區

▼公司辦公室裝飾

▼公司辦公室洽談區

▼公司辦公室休息區

▼公司辦公室休息區

▼公司辦公室會議室

▼辦公室二層辦公區

▼公司總經理辦公室

▼公司總經理辦公室

▼公司總經理辦公室

▼公司總經理辦公室

▼公司總經理辦公室

▼公司辦公室衛生間

本次公司辦公室裝修設計方案講解到此結束,設計師在辦公室設計中,以靈動、簡約、自然、童趣為設計原則,目的就是希望打造一個多元化的辦公客戶。