下文續接:青少年活動中心深化設計施工圖(1)
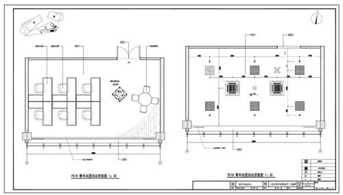
一層C區青年活動圖紙:
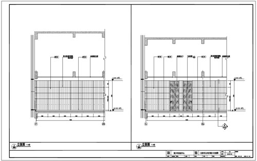
一層C區青年社團活動1234立面圖

一層C區青年社團活動平、頂面圖

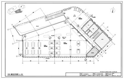
二層C區童玩區圖紙:
二層C區童玩區平面圖

二層C區童玩區頂面圖

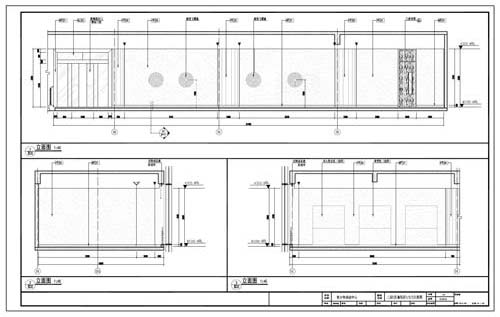
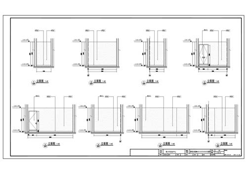
二層C區童玩區1/2/3立面圖

二層C區童玩區4/5/6立面圖

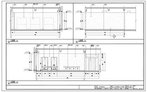
二層C區童玩區7/8立面圖

二層C區童玩區9立面圖

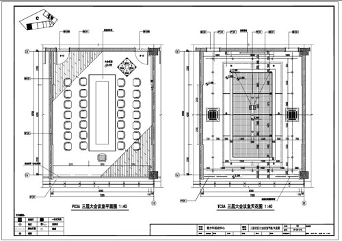
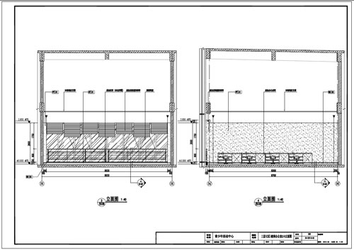
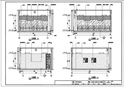
三層C區立面圖:
三層C區大會議室平面/天花圖

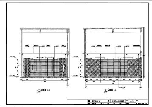
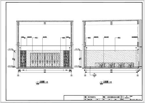
三層C區大會議室1/2立面圖

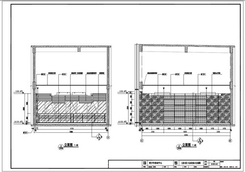
三層C區大會議室3/4立面圖

三層C區教師辦公室平面/天花圖

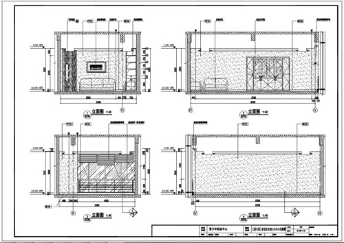
三層C區教師辦公室1/2立面圖

三層C區教師辦公室3/4立面圖

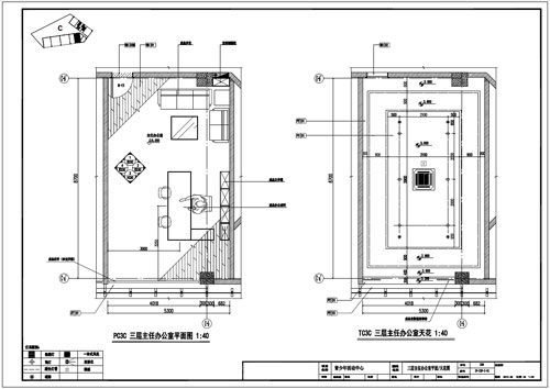
三層C區主任辦公室平面/天花圖

三層C區主任辦公室1/2/3/4立面圖

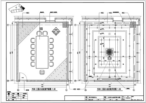
三層C區小會議室平面/天花面

三層C區小會議室1/2/3/4立面圖

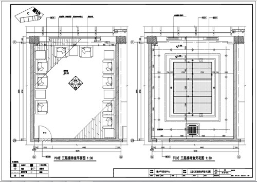
三層C區接待室平面/天花圖

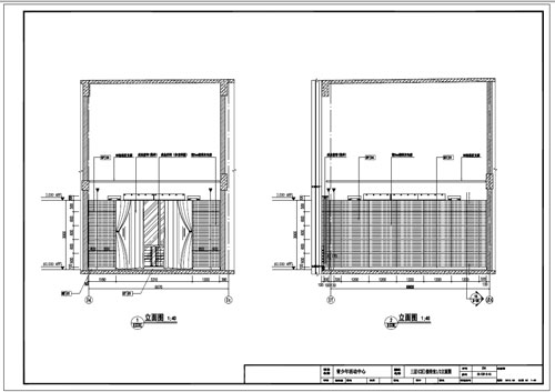
三層C區接待室1/2立面圖

三層C區接待室3/4立面圖

三層C區公共區域圖紙:
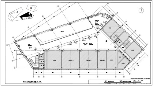
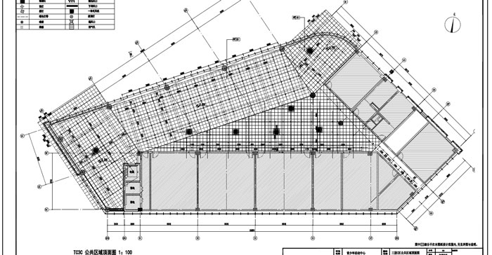
三層C區公共區域平面圖

三層C區公共區域頂面圖

三層C區公共區域1立面圖

三層C區公共區域2/3立面圖

三層C區公共區域4立面圖(1)

三層C區公共區域4立面圖(2)

三層C區公共區域5立面圖

新風機房與強弱電間施工圖:
新風機房/強弱電平面/吊頂布置圖

新風機房/強弱電1/2/3/4/5/6/7/8立面圖
.
新風機房/強弱電9/10/11/12/13/14/15/16立面圖

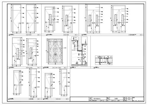
門表圖:
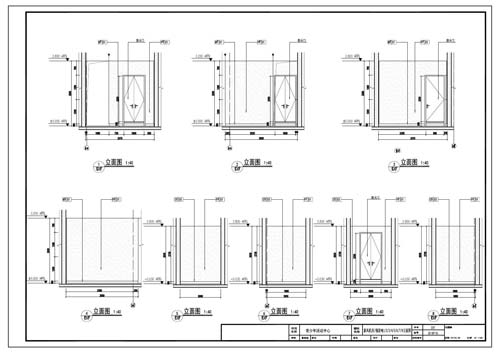
門表圖1

門表圖2
